Процедура: 21000034750000000242

Наименование процедуры

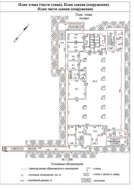
Приватизация недвижимого имущества, находящегося в собственности Республики Крым, входящего в состав казны Республики Крым и включенного в Реестр имущества Республики Крым  -  нежилого помещения, общей площадью 598,5 кв. м, кадастровый номер 90:22:010110:1870, расположенного в подвале нежилого здания по адресу: Республика Крым, г. Симферополь, ул. Трансформаторная, д. 7.

Организатор торгов

МИНИСТЕРСТВО ИМУЩЕСТВЕННЫХ И ЗЕМЕЛЬНЫХ ОТНОШЕНИЙ РЕСПУБЛИКИ КРЫМ (ИНН 9102012080)

ФИО

Левенко Оксана Юрьевна, Колыхалова Мария Викторовна

Телефон

+7 365 255 07 26

E-mail

otdel_privatizacii@mzem.rk.gov.ru

Способ проведения

Аукцион в электронной форме

Торговая секция

Имущественные торги (178-ФЗ), 178fz.roseltorg.ru

Общий порядок участия в имущественных торгах

Основные шаги, инструкции и лайфхаки

Лоты

Лот 1
Архив

Нежилое помещение, общей площадью 598,5 кв. м, расположенное в подвале нежилого здания, по адресу: Республика Крым, г. Симферополь, ул. Трансформаторная, д. 7

7 845 000,00

Обеспечение заявки:

784 500,00

Плата за участие:

Участие бесплатное

Этапы

Публикация извещения

13.08.25 00:00:00 (МСК)

Дата и время окончания приёма заявок

до 08.09.25 18:00:00 (МСК)

Рассмотрение заявок

до 10.09.25 23:59:59 (МСК)

Проведение торгов

12.09.25 10:00:00 (МСК)

Продавец

Название организации

МИНИСТЕРСТВО ИМУЩЕСТВЕННЫХ И ЗЕМЕЛЬНЫХ ОТНОШЕНИЙ РЕСПУБЛИКИ КРЫМ (ИНН 9102012080)

Информация об имуществе

Категория

Коммерческая недвижимость

Лот 1

Этапы процедуры

Публикация извещения

13.08.25 00:00:00

Ознакомьтесь с документацией и начинайте подготовку к торгам

Для участия в процедуре нужно:

Прием заявок

Идет прием заявок

Для подачи заявки нужно:

  • Получить квалифицированную электронную подпись. Подробнее

 

Также вы можете:

  • Провести аудит заявки, который позволит исключить риск отклонения заявки по формальным основаниям. Подробнее

  • Предоставить обеспечение заявки или получить банковскую гарантию с комиссией от 1,5%

    Получить гарантию

Работа комиссии

Процедура завершена

Лот 1

Процедура завершена

Посмотрите другие процедуры этого заказчика

Другие закупки заказчика