Процедура: 21000002970000000569

Наименование процедуры

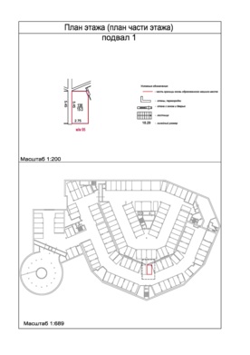
Продажа имущества, находящегося в оперативном управлении ГБУ «Жилищник Бескудниковского района», по адресу: г. Москва, ул. Селигерская, д. 26, стр. 3, площадь 15,0 кв. м, подвал 1, помещение XXIII — машино-место 95. Кадастровый номер 77:09:0002026:16982.

Организатор торгов

ГОСУДАРСТВЕННОЕ БЮДЖЕТНОЕ УЧРЕЖДЕНИЕ ГОРОДА МОСКВЫ "ЖИЛИЩНИК БЕСКУДНИКОВСКОГО РАЙОНА" (ИНН 7713398637)

ФИО

-----------

Телефон

+7 499 487 04 90

E-mail

gbu-besk@pnao.mos.ru

Способ проведения

Аукцион в электронной форме

Торговая секция

Имущественные торги (178-ФЗ), 178fz.roseltorg.ru

Теги процедуры
Справочная информация по имущественным торгам г. Москвы

Особенности проведения популярных торгов

Информация на Инвестиционном портале

Дополнительная информация о процедуре

Лоты

Лот 1
Прием заявок

Продажа имущества, находящегося в оперативном управлении ГБУ «Жилищник Бескудниковского района», по адресу: г. Москва, ул. Селигерская, д. 26, стр. 3, площадь 15,0 кв. м, подвал 1, помещение XXIII — машино-место 95. Кадастровый номер 77:09:0002026:16982.

Этапы

Публикация извещения

23.03.26 20:00:00 (МСК)

Дата и время окончания приёма заявок

до 27.04.26 15:00:00 (МСК)

Рассмотрение заявок

до 05.05.26 23:59:59 (МСК)

Проведение торгов

08.05.26 10:00:00 (МСК)

Продавец

Название организации

ГОСУДАРСТВЕННОЕ БЮДЖЕТНОЕ УЧРЕЖДЕНИЕ ГОРОДА МОСКВЫ "ЖИЛИЩНИК БЕСКУДНИКОВСКОГО РАЙОНА" (ИНН 7713398637)

Информация об имуществе

Категория

Машино-места и гаражи

Запрос на разъяснение документации

Этапы процедуры

Публикация извещения

23.03.26 20:00:00

Ознакомьтесь с документацией и начинайте подготовку к торгам

Для участия в процедуре нужно:

Прием заявок

Лот 1

Идет прием заявок

Для подачи заявки нужно:

  • Получить квалифицированную электронную подпись. Подробнее

 

Также вы можете:

  • Предоставить обеспечение заявки или получить банковскую гарантию с комиссией от 1,5%

    Получить гарантию

Работа комиссии

Ваша заявка прошла отбор?

Получите банковскую гарантию с комиссией от 1,5% для обеспечения контракта

Получить гарантию

Процедура завершена

Процедура завершена

Посмотрите другие процедуры этого заказчика

Другие закупки заказчика